20246 Fern Creek Lane #42

Yorba Linda, CA 92886

$ 619,000

Price

3

Beds

1.75

Baths

1,179 Sq. Ft.

$525 / Sq. Ft.

Zillow Price Estimate - $619,005

1256 Days On Market

Favorite

Share

Fairmont Hill Building

Have You Been Pre-Qualified? Start Now

Listing provided by agent Robert Van Der Goes BRE# 01413282 at Seven Gables Real Estate and Diane Van Der Goes BRE# 02045858 at Seven Gables Real Estate.

Last Updated: 1197 days ago

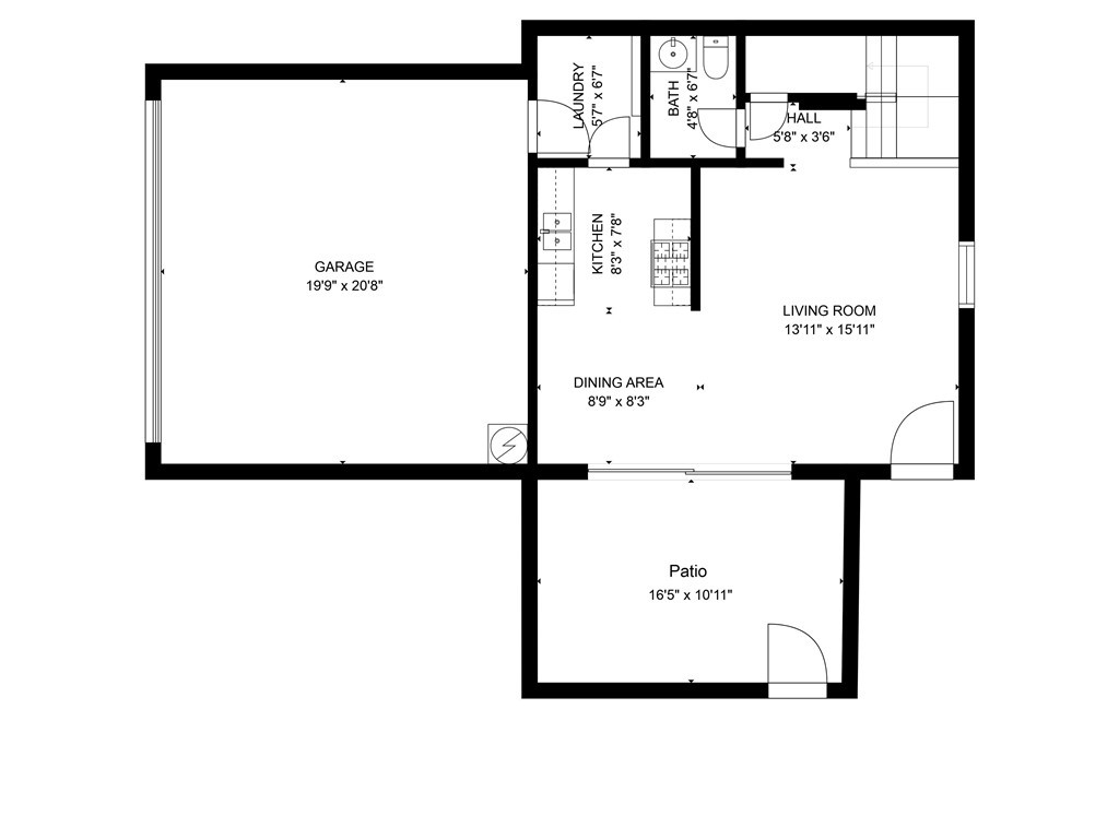
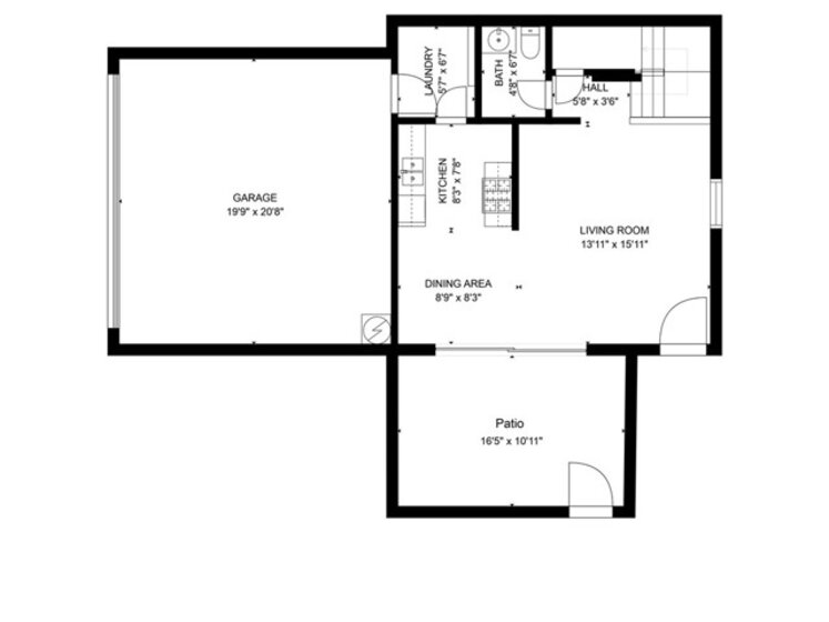
This move-in ready Fairmont Hill air conditioned 3 bedroom, 2.5 bath home under $620,000 just hit the market! This highly sought-after end unit floorplan has no one above or below you. That is correct, you won’t hear footsteps or plumbing above you or garage doors below you. Upon entry, you are greeted into the large living room as it flows towards the dual pane sliding door that leads you to your private enclosed patio. Enjoy a nice coffee in the morning, sip a chilled drink in the evening or enjoy dining al fresco on your patio. As you step back inside and head towards the dining area and kitchen. Just past the kitchen you will find a separate laundry room with washer & dryer hook ups, cabinet storage space and the door leading to your 2-car garage. Head upstairs and notice how large the primary bedroom is and be sure to check out the triple mirrored closet doors with plenty of closet space. The ensuite bathroom features a full-sized walk-in shower. This home is complete with the 2 additional upstairs bedrooms, both with dual mirrored closet doors and the full shower over tub hallway bathroom. Additional amenities to hi-lite in this home are newer HVAC unit, custom ceiling fans with lighting in all 3 bedrooms and dining area, dual pane windows throughout, plantation shutters upstairs, direct access garage, fresh interior painting and the Fairmont Hill community amenities. HOA amenities include, 2 swimming pools, hot tub, children’s play area, sand volleyball, basic cable, trash and much more. All this conveniently located with easy freeway access, close to epicurean dining, great shopping, Yorba Linda Town Center & Savi Ranch, plus don’t forget the highly ranked schools of Glenknoll Elementary, Bernardo Yorba Middle School and Esperanza High School.

Show More
Property Type Condominium
Lot Size 1,000 sq. ft.
Year Built 1976
MLS # OC22155545
Listing Type Closed
Heating Central
Cooling Central Air
Pool Private, Association, Community, In Ground
Laundry Gas Dryer Hookup, Individual Room, Inside, Washer Hookup
Parking Direct Garage Access, Concrete, Driveway Level, Garage, Garage Faces Side, Garage - Single Door, Garage Door Opener, Side by Side
Gated Community No

Payment Calculator

40% Complete (success)
80% Complete (danger)
20% Complete
80% Complete (danger)
60% Complete (warning)
Principal and Interest
Property Taxes
Homeowners' Insurance
HOA Dues
Mortgage Insurance
Image Calculator Icon Customize Calculations | Compare Mortgage Rates

Property Details for: 20246 Fern Creek Lane #42

Interior Features

Bathroom Information
  • 1 full bath, 1 half bath, 1 three quarter bath
Laundry Information
  • Gas Dryer Hookup
  • Individual Room
  • Inside
  • Washer Hookup
Interior Features
  • Ceiling Fan(s)
  • Tile Counters
Heating & Cooling
  • Central Air
  • Central

Parking / Garage, Multi-Unit Information, Location Details

Interior Information
  • Ceiling Fan(s)
  • Tile Counters
Parking Information
  • Direct Garage Access
  • Concrete
  • Driveway Level
  • Garage
  • Garage Faces Side
  • Garage - Single Door
  • Garage Door Opener
  • Side by Side
Community Features
  • Units in Complex (Total) 496

Exterior Features

Pool & Spa Information
  • Private
  • Association
  • Community
  • In Ground
  • Private
  • Association
  • Community
  • Heated
  • In Ground
Building Information
  • Total Floors: 2

Property / Lot Details

Property Features
  • Canyon
  • City Lights
  • Hills
  • Mountain(s)
  • Park/Greenbelt
  • Trees/Woods
Lot Information
  • Lot Size (Sq. Ft) 1,000
Property Information
  • Attached
  • Tax Parcel Number: 93673042

Recently Sold Homes Near 20246 Fern Creek Lane #42

Nearby Businesses

  • Grocery Stores
  • Drug Stores
  • Coffee Shops
  • Restaurants
  • Health & Medical
  • Fitness & Activity
  • Arts & Entertainment
  • Nightlife & Bars
    Browse all businesses in Yorba Linda, CA, 92886

    Tour This Condo

    MONDAY

    12

    JAN

    TUESDAY

    13

    JAN

    WEDNESDAY

    14

    JAN

    THURSDAY

    15

    JAN

    FRIDAY

    16

    JAN

    SATURDAY

    17

    JAN

    SUNDAY

    18

    JAN

    Schedule A Tour
    Ryan Case, Licensed Realtor & Team Lead

    Ryan Case

    Licensed Realtor & Team Lead

    949-570-4445 Contact Ryan Case
    Listing provided by agent Robert Van Der Goes BRE# 01413282 at Seven Gables Real Estate and Diane Van Der Goes BRE# 02045858 at Seven Gables Real Estate.

    Last Updated: 1197 days ago

    Similar Condos For Sale

    For Sale

    $ 625,000

    2 beds, 1.5 baths, 1,017 sq.ft.

    20333 Cranberry Lane ...
    View All 32 Condos